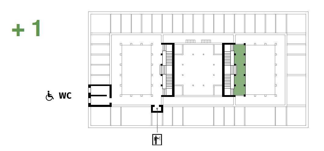
Griechische Philosophen, Politiker und Literaten der Klassik und verwandte Statuen befinden sich im ersten Geschoss des zweiten Lichthofs.